Please use this identifier to cite or link to this item: http://hdl.handle.net/10174/15690

Title: Centro interpretativo de Évora Romana
Authors: Valente, Rita Fialho
Advisors: Patrocínio, Manuel F. S.
Domingos, Nuno
Issue Date: 2011
Publisher: Universidade de Évora
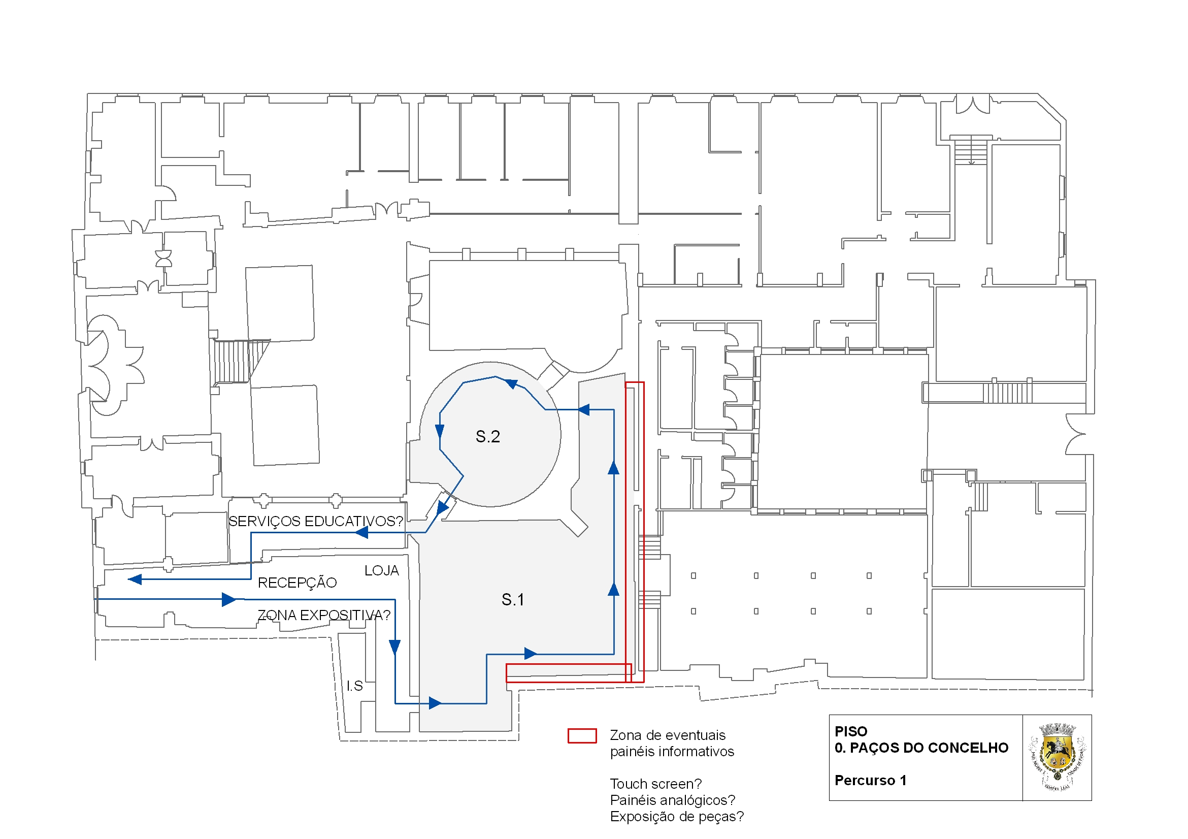
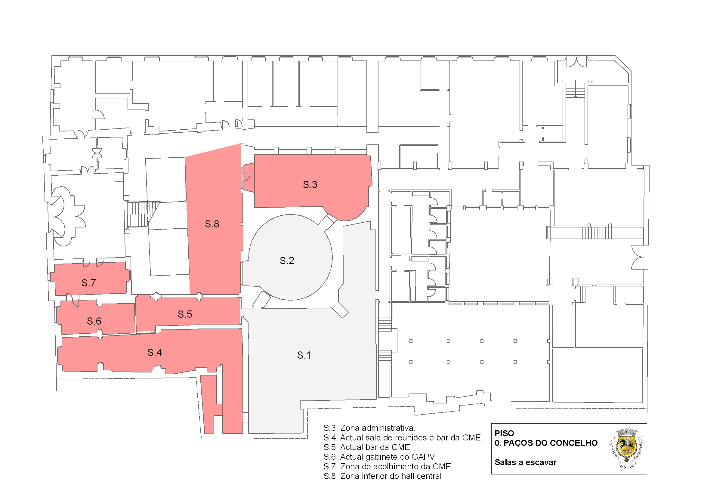
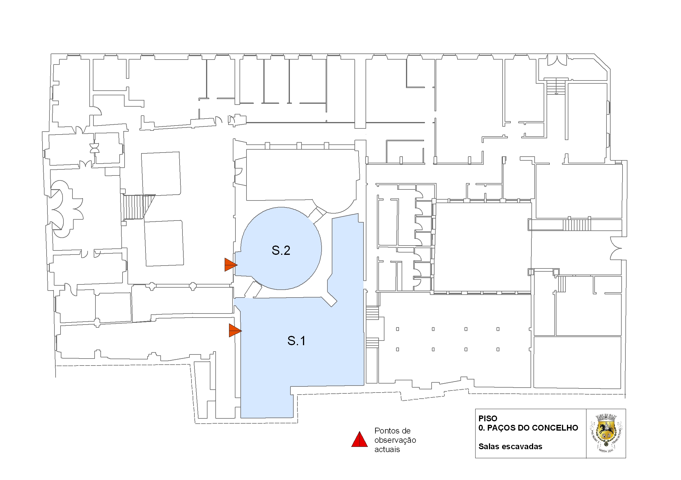
Abstract: Introdução: O presente relatório de estágio trata da elaboração de um programa preliminar de intervenção patrimonial, através de uma proposta de musealização das termas romanas, situadas no palácio dos Condes de Sortelha, actual edifício dos Paços do Concelho do Município de Évora.
URI: http://hdl.handle.net/10174/15690
Type: masterThesis
Appears in Collections:BIB - Formação Avançada - Teses de Mestrado

Files in This Item:

File Description SizeFormat
sub capa.pdf8.05 kBAdobe PDFView/Open
Relatório.pdf1.04 MBAdobe PDFView/Open
CAPA.pdf33.54 kBAdobe PDFView/Open
apêndice e extra-texto.pdf3.05 MBAdobe PDFView/Open
S.4.jpg556.33 kBJPEGView/Open
S.3.jpg505.98 kBJPEGView/Open
S.2.jpg485.18 kBJPEGView/Open
S.1.jpg410.67 kBJPEGView/Open
FacebookTwitterDeliciousLinkedInDiggGoogle BookmarksMySpaceOrkut
Formato BibTex mendeley Endnote Logotipo do DeGóis 

Items in DSpace are protected by copyright, with all rights reserved, unless otherwise indicated.

 

Dspace Dspace
DSpace Software, version 1.6.2 Copyright © 2002-2008 MIT and Hewlett-Packard - Feedback
UEvora B-On Curriculum DeGois